1、打开一张需要缩放的CAD图纸,进入到CAD绘图操作界面。

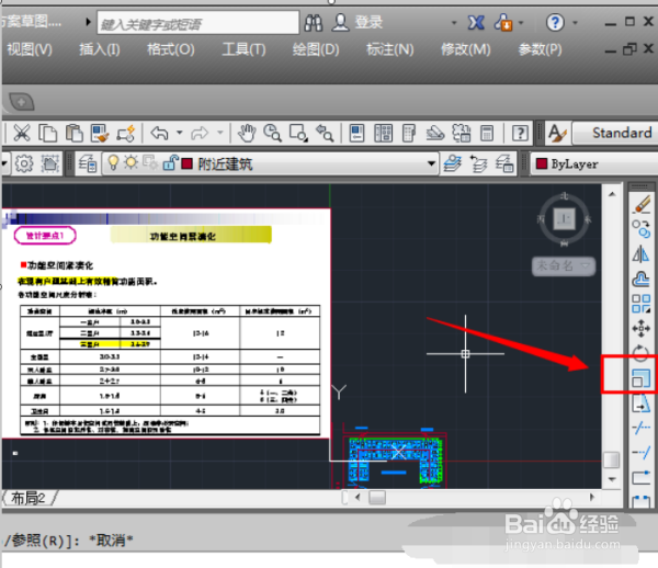
2、点击右面“修改”菜单栏的“缩放”按钮即两个大小的正方形一起的那个图标,或者点击上方菜单栏的“修改”,然后点击“缩放”。

3、进行缩放,在命令栏出现缩放“scale”命令,要求指定对象,点击需要缩放的对象。

4、点击之后找到缩放的对象,显示“找到对象”。

5、要求指定基点,这时候指定需要缩放的“基点”也就是以哪个点为标准进行缩放。一般来说选择图形的角比较好。点击这个基点。

6、指定基点之后,要求输入图形的缩放比例,这里根据自己的喜好,输入缩放比例。

7、这里我想把它缩小,现则了0.1的比例,在命令栏输入0.1之后,点击“回车键”即可,如果想放大,输入大于1的数字即可实现放大。

8、具体步骤总结如下:1、打开一张需要缩放的CAD图纸,进入到CAD绘图操作界面。2、点击右面“修改”菜单栏的“缩放”按钮即两个大小的正方形一起的那个图标,或者点击上方菜单栏的“修改”,然后点击“缩放”。3、进行缩放,在命令栏出现缩放“scale”命令,要求指定对象,点击需要缩放的对象。4、点击之后找到缩放的对象,显示“找到对象”。5、要求指定基点,这时候指定需要缩放的“基点”也就是以哪个点为标准进行缩放。一般来说选择图形的角比较好。点击这个基点。6、指定基点之后,要求输入图形的缩放比例,这里根据自己的喜好,输入缩放比例。7、这里我想把它缩小,现则了0.1的比例,在命令栏输入0.1之后,点击“回车键”即可,如果想放大,输入大于1的数字即可实现放大。